4307 Cottage Ave
Indianapolis, IN 46203

Scroll to Content

Images

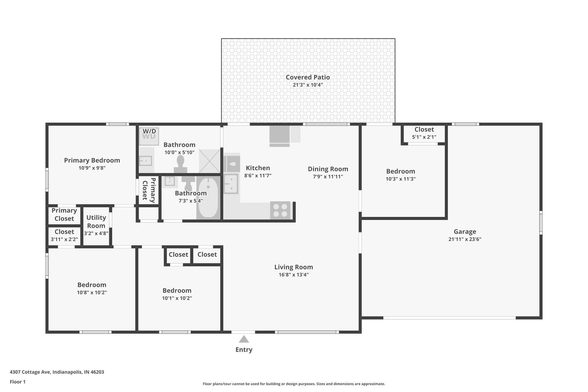
Floor Plans

3D Tour

Contact

Feel free to contact us for more details!

Melissa Roop

Melissa Roop

Howard Hanna - F.C. Tucker

(260) 413-8374

melissa.roop@talktotucker.com