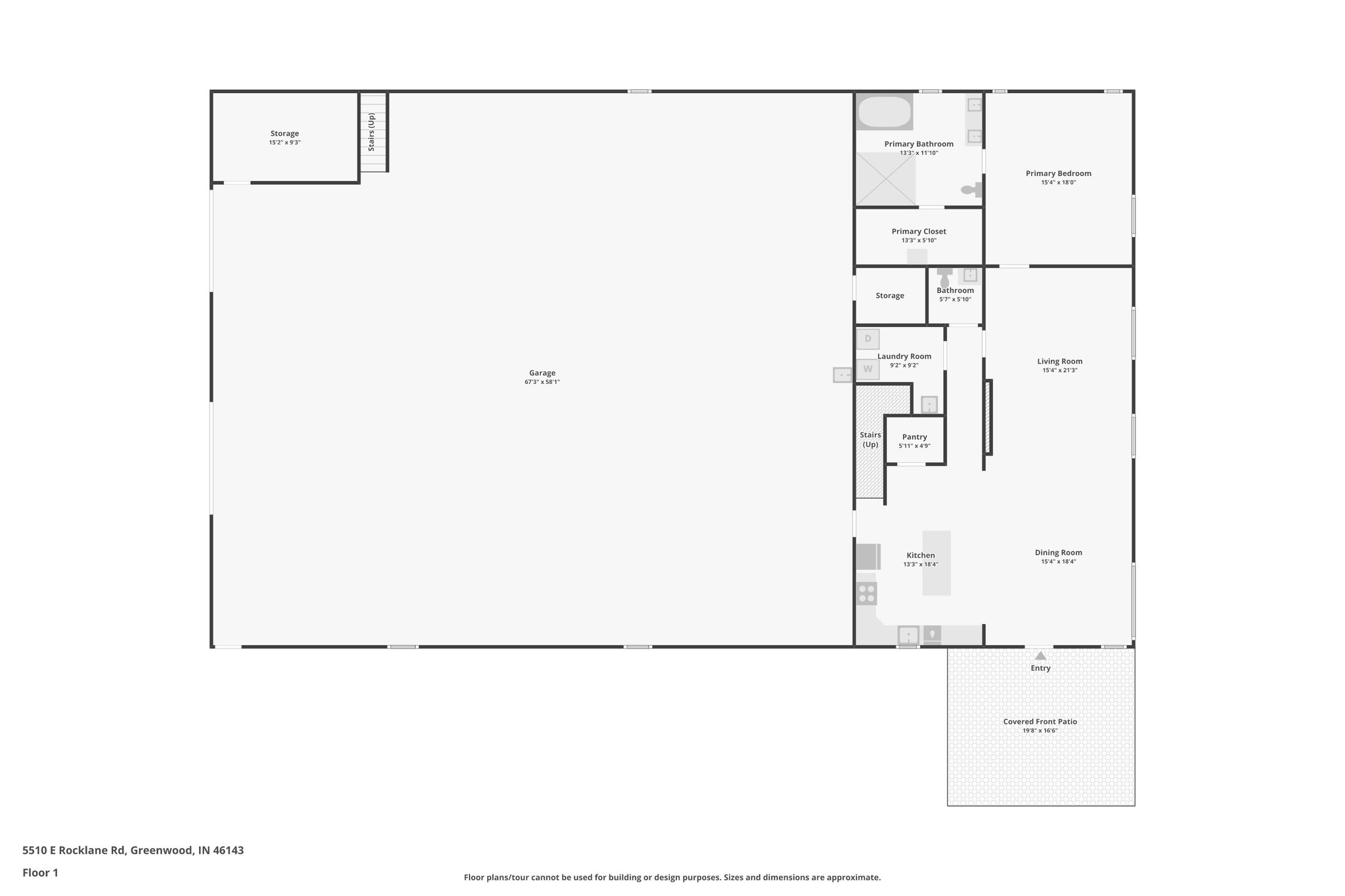
5510 Rocklane Rd, Greenwood, IN 46143
Toggle Navigation
Images
Videos
Floor Plans
3D Tour
Map
5510 Rocklane Rd
Greenwood, IN 46143
Scroll to Content
Images
Slideshow
Photo Grid
Hide
Previous
Next
Show more
Videos
Floor Plans
Slideshow
Photo Grid
Hide
Previous
Next
3D Tour