3892 Golden Knot Dr, Kissimmee, FL 34746
Toggle Navigation
Images
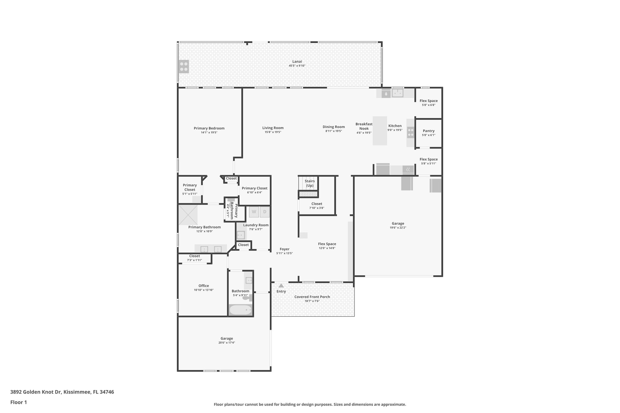
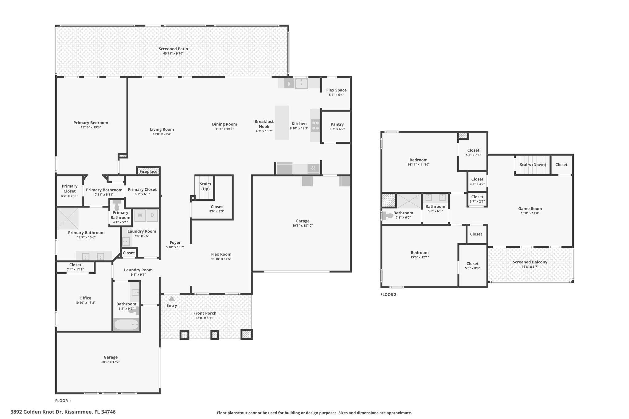
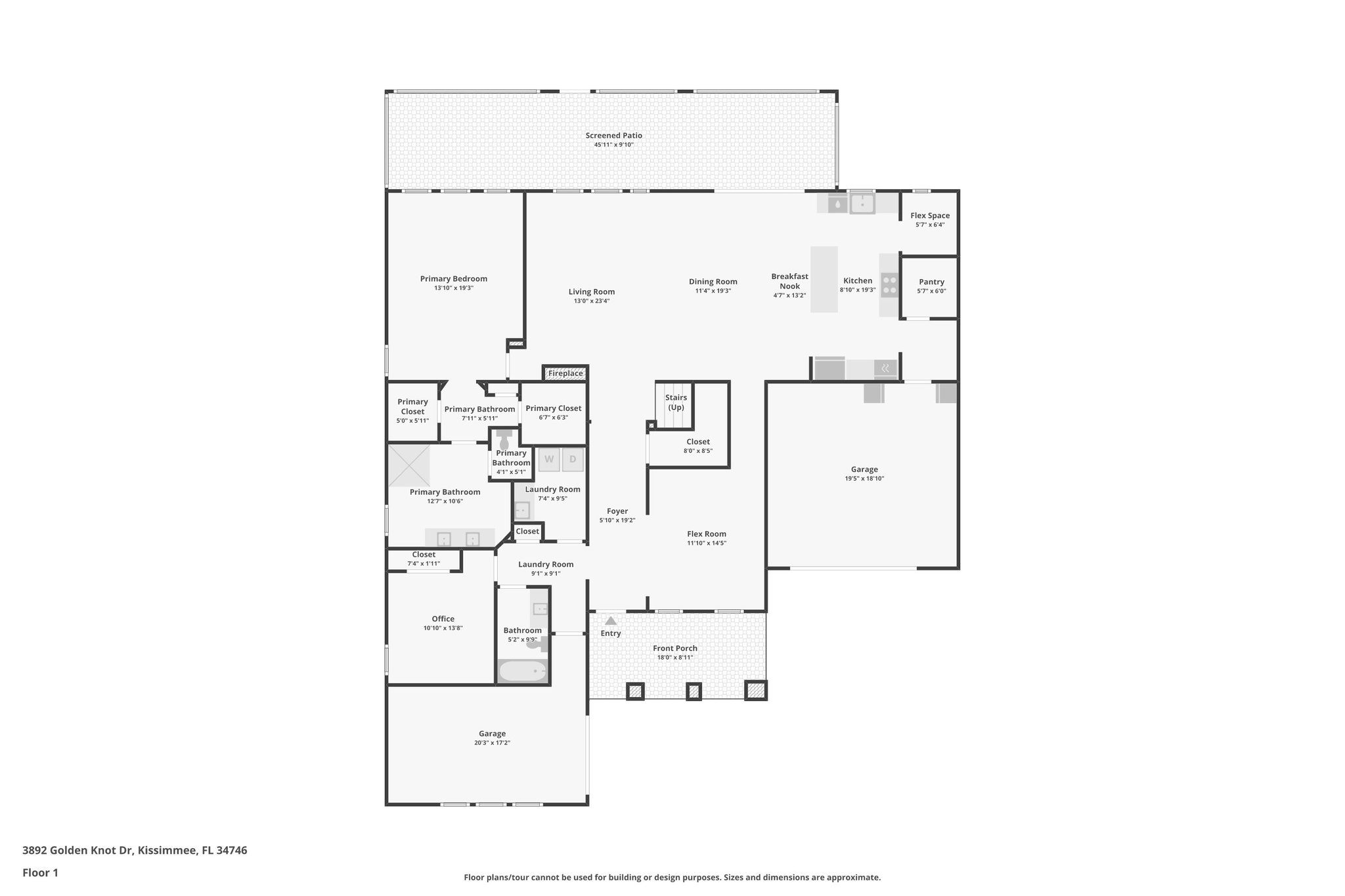
Floor Plans
3D Tour
Map
3892 Golden Knot Dr
Kissimmee, FL 34746
Scroll to Content
Images
Slideshow
Photo Grid
Hide
Previous
Next
Show more
Floor Plans
Slideshow
Photo Grid
Hide
Previous
Next
3D Tour