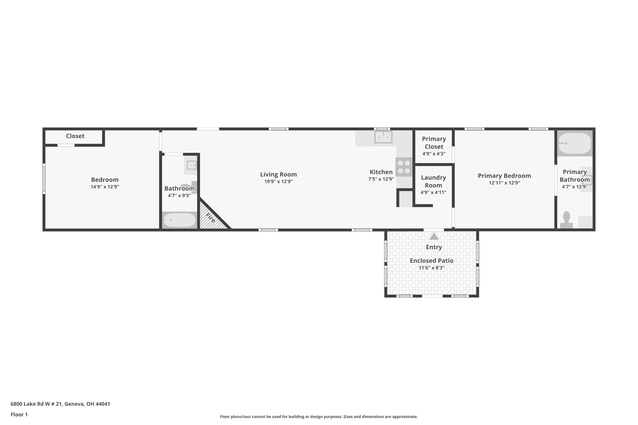
6800 Lake Rd W 21, Geneva, OH 44041
Toggle Navigation
Images
Floor Plans
3D Tour
Map
6800 Lake Rd W 21
Geneva, OH 44041
Scroll to Content
Images
Slideshow
Photo Grid
Hide
Previous
Next
Show more
Floor Plans
Slideshow
Photo Grid
Hide
Previous
Next
3D Tour