7854 Bayard Dr, Indianapolis, IN 46259
Toggle Navigation
Images
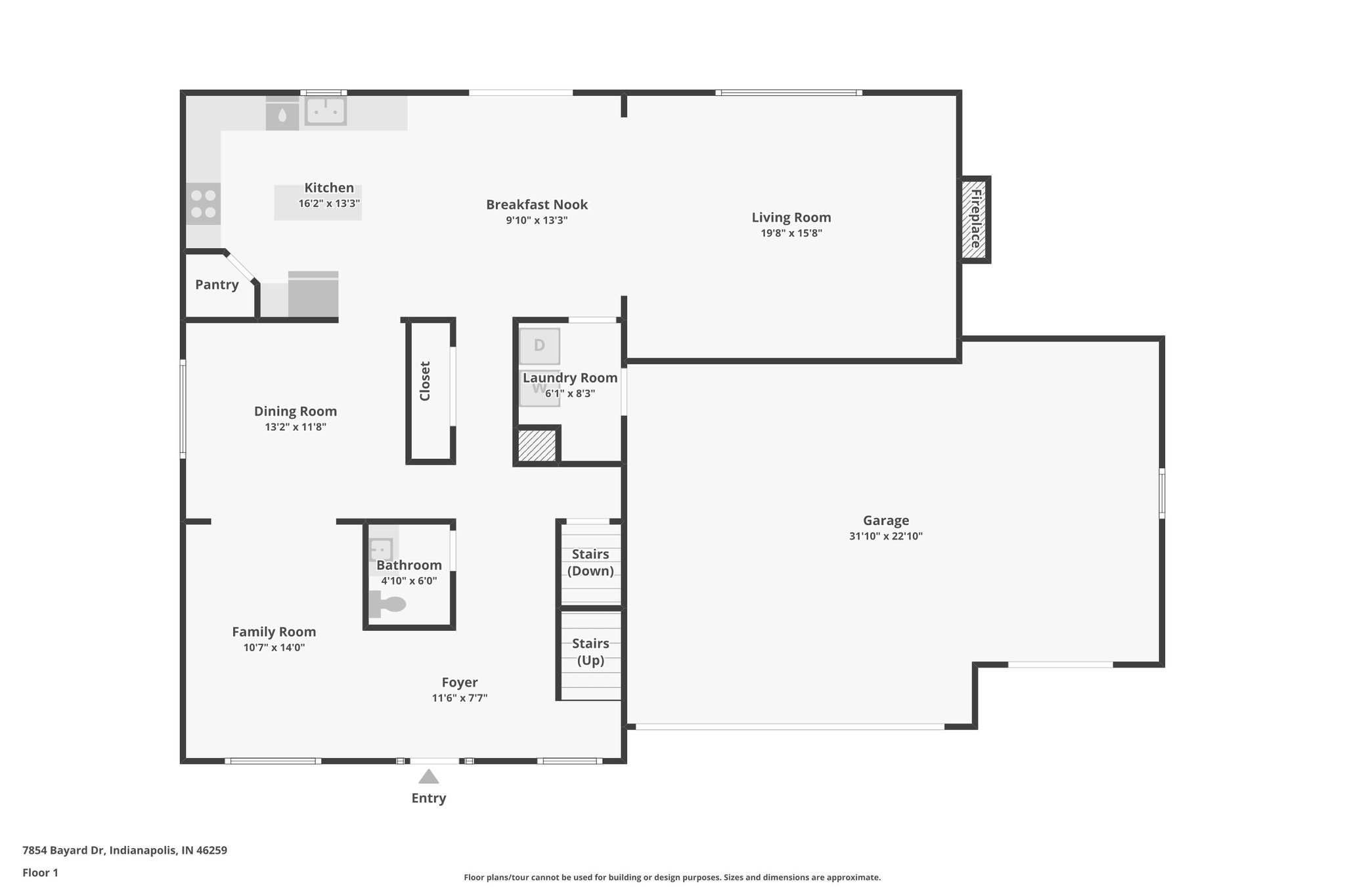
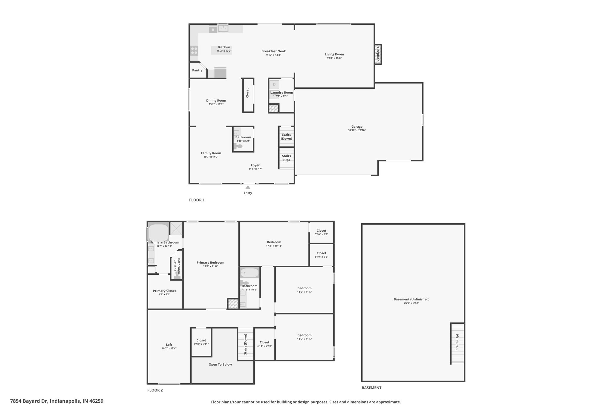
Floor Plans
3D Tour
Map
7854 Bayard Dr
Indianapolis, IN 46259
Scroll to Content
Images
Slideshow
Photo Grid
Hide
Previous
Next
Show more
Floor Plans
Slideshow
Photo Grid
Hide
Previous
Next
3D Tour