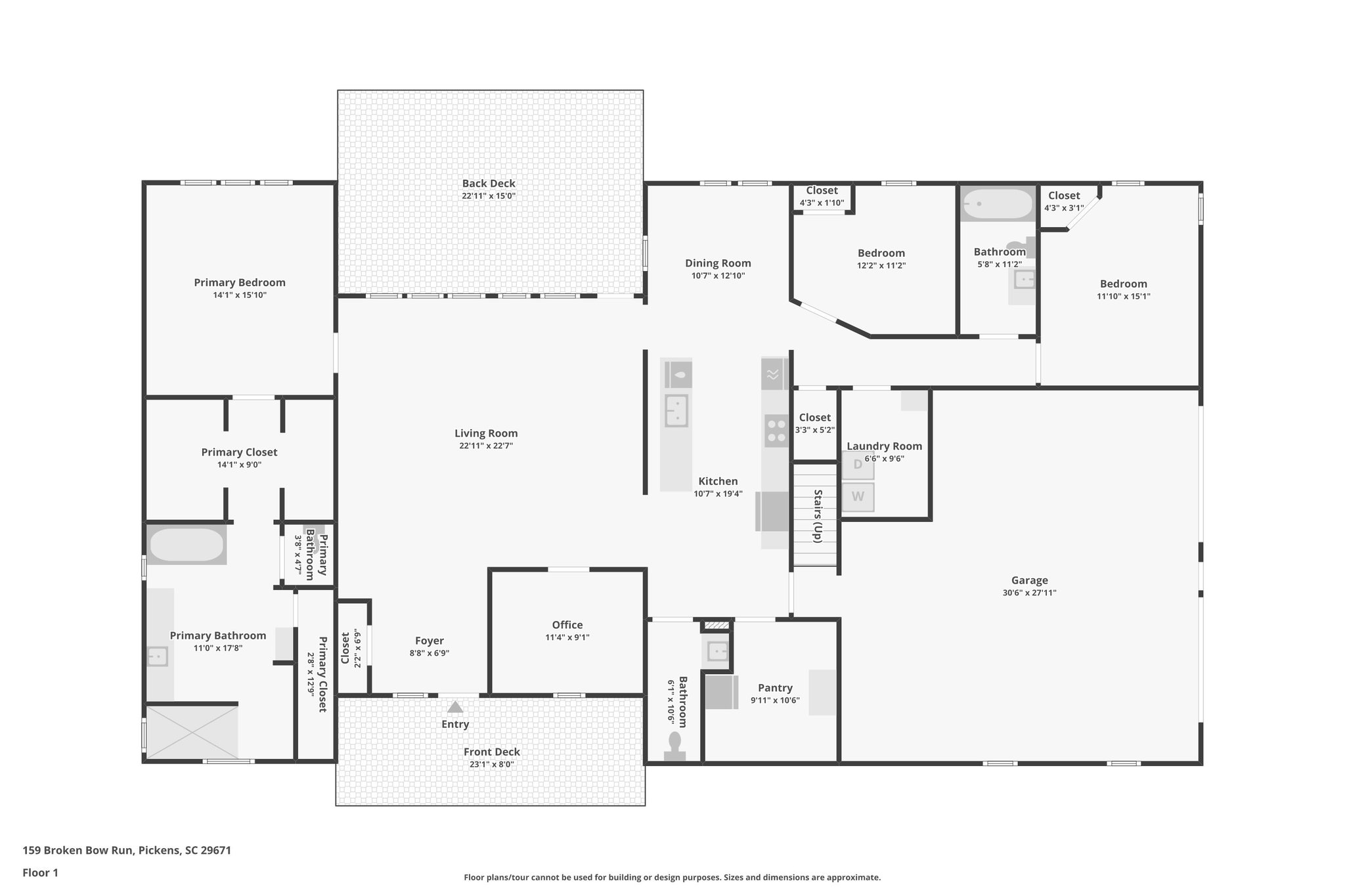
159 Broken Bow Run, Pickens, SC 29671
Toggle Navigation
Images
Floor Plans
3D Tour
Map
159 Broken Bow Run
Pickens, SC 29671
Scroll to Content
Images
Slideshow
Photo Grid
Hide
Previous
Next
Show more
Floor Plans
Slideshow
Photo Grid
Hide
Previous
Next
3D Tour