ADU Potential- Live in 1 unit Rent the Other and Build more!

Scroll to Content

Details

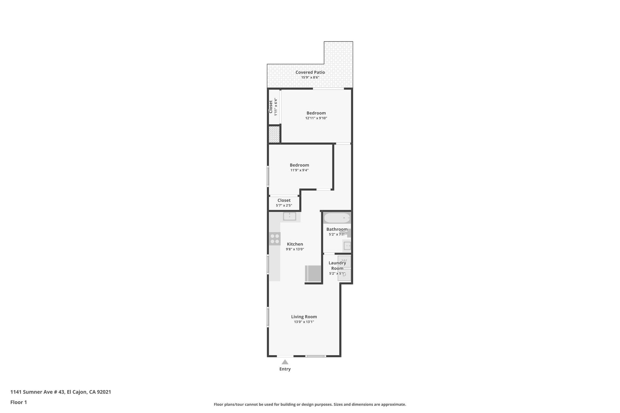
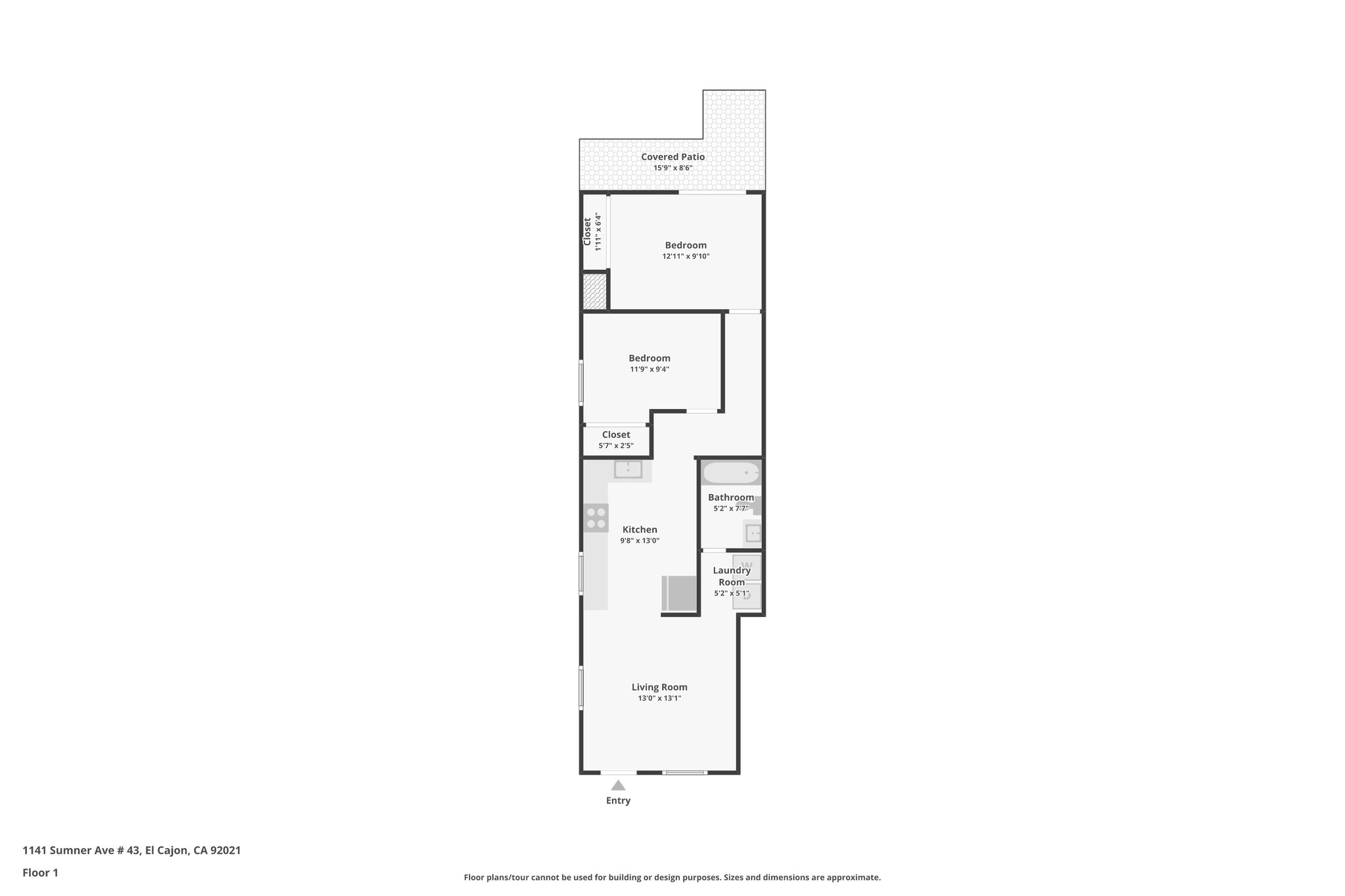
Motivated Seller now offering $10,000 for buyers closing concessions or a buyer rate buy down! if your offer is accepted before 02/14/2026! This property has extreme ADU potential as it is located on a nice large .22 Acre lot. This property features both units in move in ready, turnkey condition, an overall high-NOI duplex! Beautifully remodeled so buyers can get instant cash flow. High efficient upgrades in with solar, mini-splits, already fenced private yards, and projected $6,200/mo rents—ideal for house hacking or investors in demand-heavy El Cajon. Inquire with Alexandra to see if you can use a first time home grant program to help off set initial investment costs! (All building potential must be verified with local building departments.)

  • $1,049,000
  • 4 Bedrooms
  • 2 Bathrooms
  • Lot 0.22 Acres
  • 4 Parking Spots
  • Built in 1959
  • MLS: 250045685

Images

Videos

Floor Plans

3D Tour