1584 W 31st St, Jacksonville, FL 32209
Toggle Navigation
Images
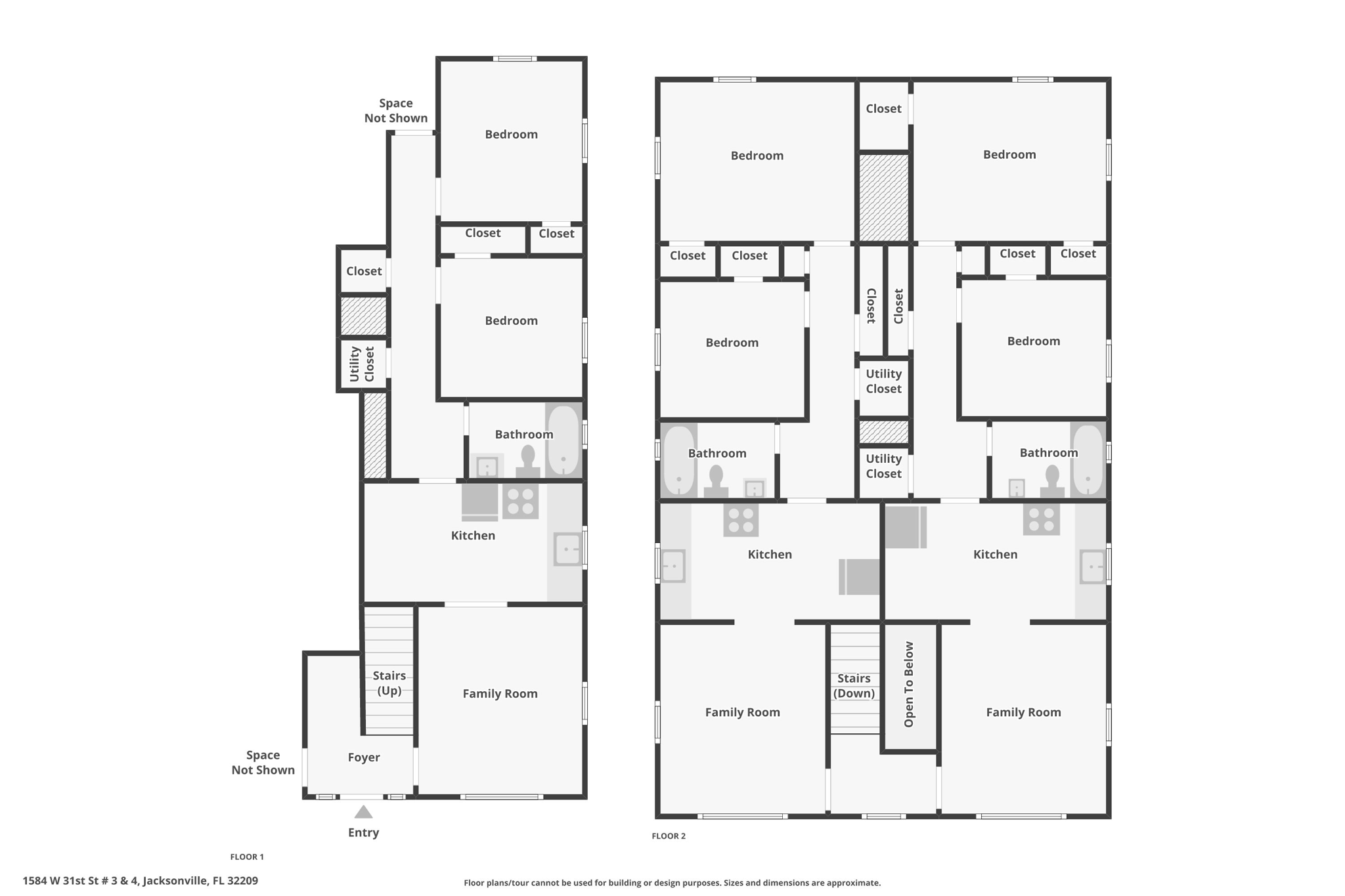
Floor Plans
3D Tour
Map
1584 W 31st St
Jacksonville, FL 32209
Scroll to Content
Images
Slideshow
Photo Grid
Hide
Previous
Next
Show more
Floor Plans
Slideshow
Photo Grid
Hide
Previous
Next
3D Tour