11619 Dorothy Sayers Pl, Waldorf, MD 20695
Toggle Navigation
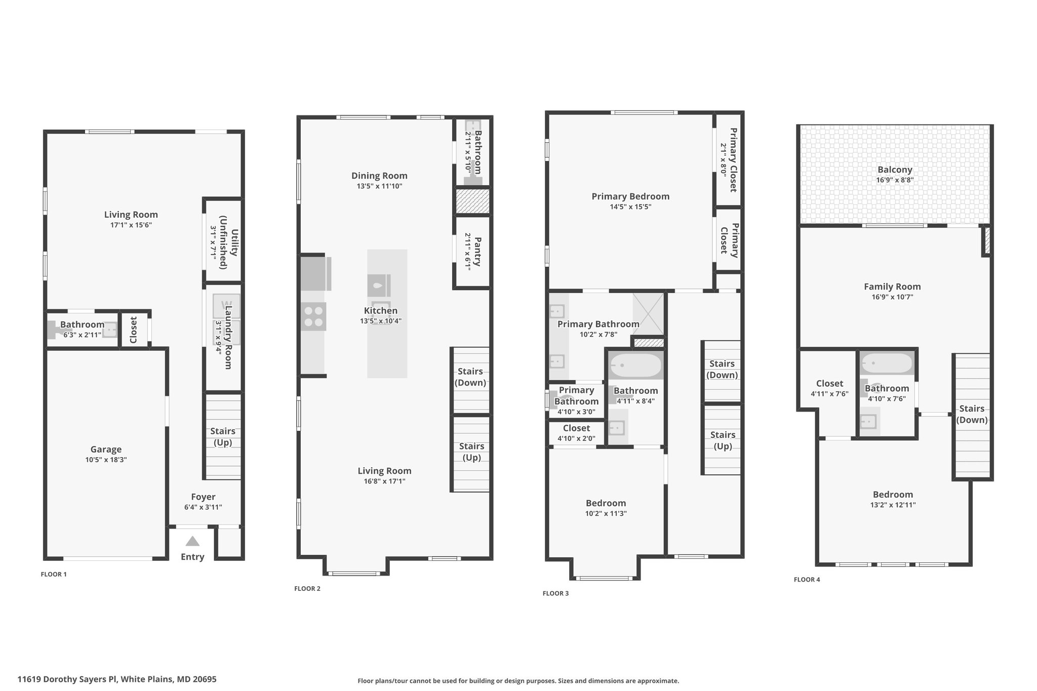
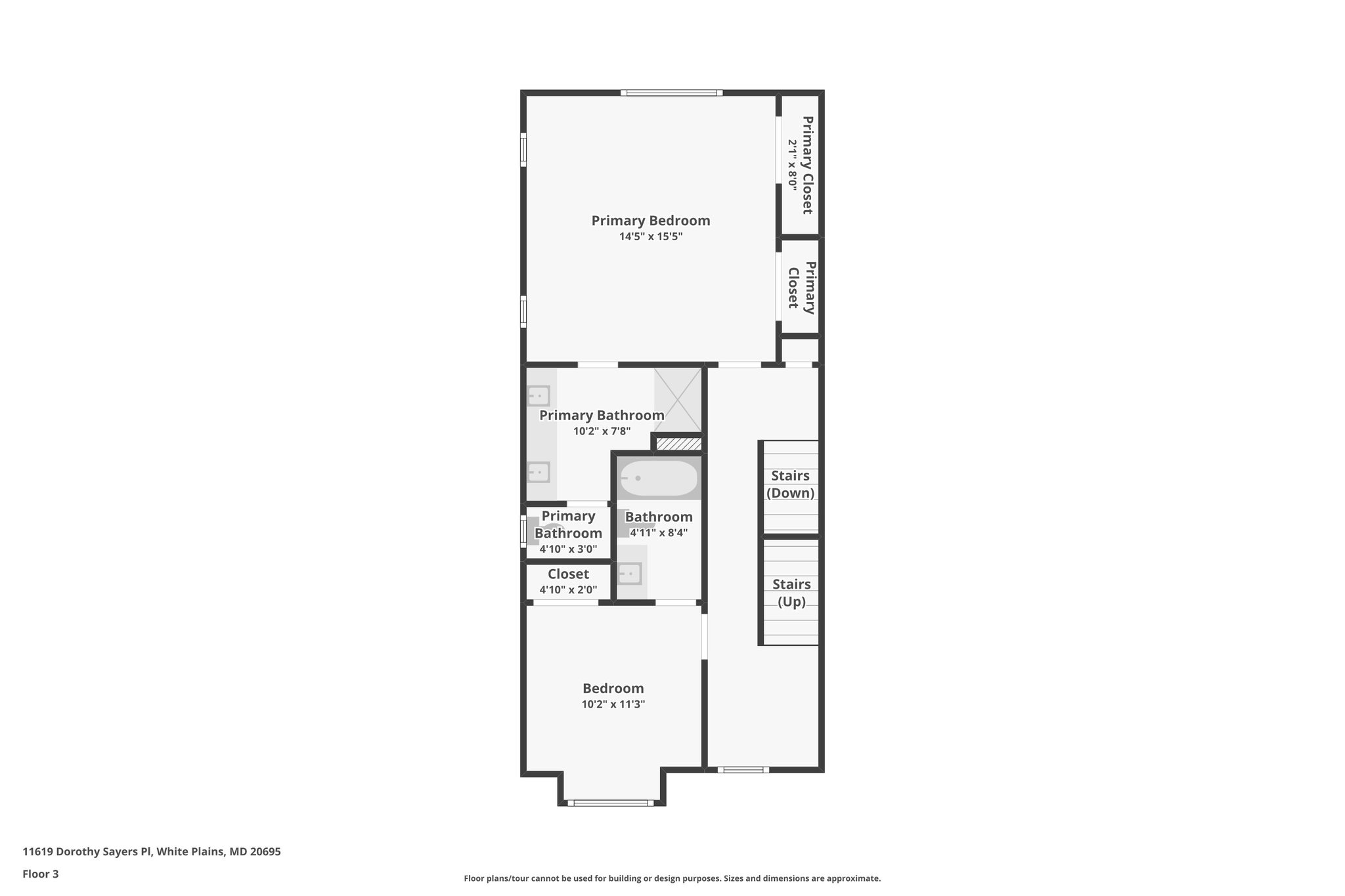
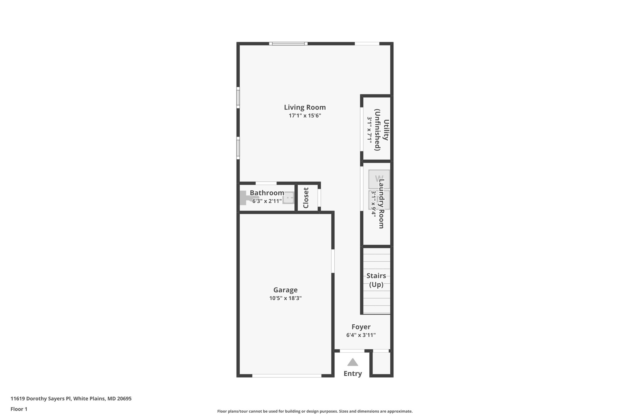
Floor Plans
3D Tour
Map
11619 Dorothy Sayers Pl
Waldorf, MD 20695
Scroll to Content
Floor Plans
Slideshow
Photo Grid
Hide
Previous
Next
3D Tour