2992 Greenridge Rd, Norton, OH 44203
Toggle Navigation
Images
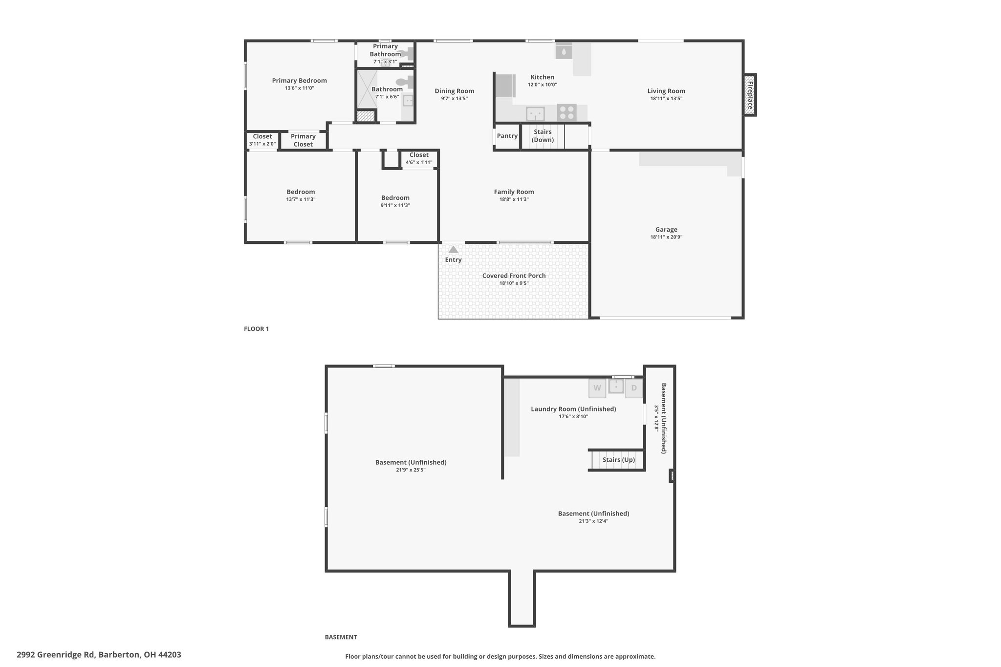
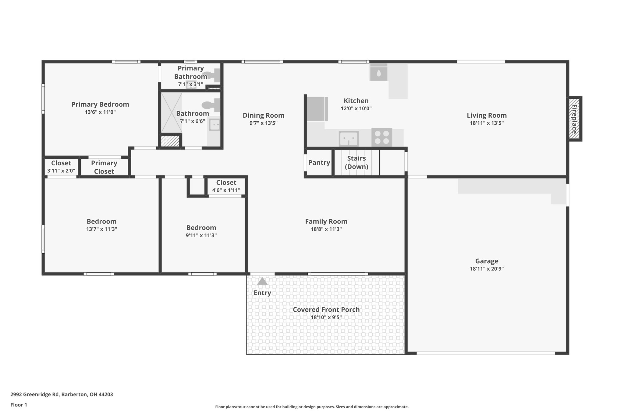
Floor Plans
3D Tour
Map
2992 Greenridge Rd
Norton, OH 44203
Scroll to Content
Images
Slideshow
Photo Grid
Hide
Previous
Next
Show more
Floor Plans
Slideshow
Photo Grid
Hide
Previous
Next
3D Tour