521 Lawson School Rd 8, Delavan, WI 53115
Toggle Navigation
Images
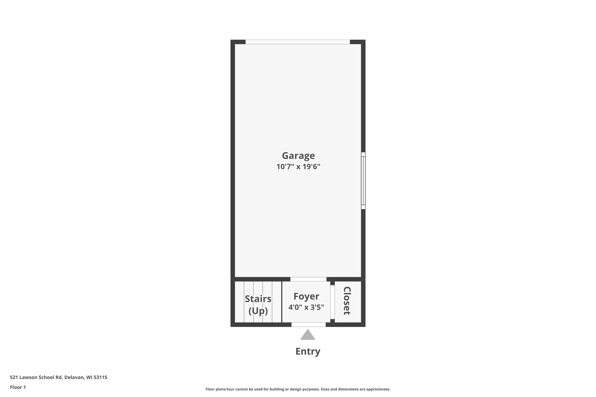
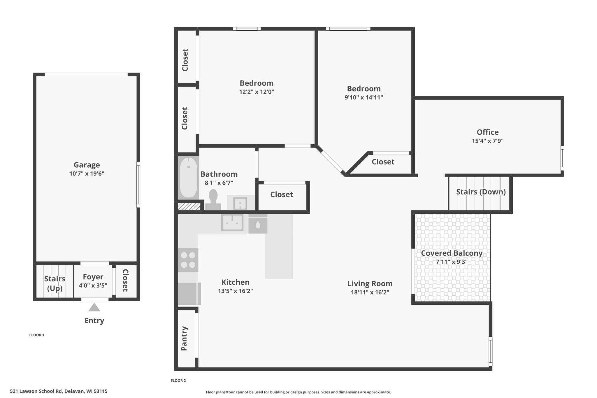
Floor Plans
3D Tour
Map
521 Lawson School Rd 8
Delavan, WI 53115
Scroll to Content
Images
Slideshow
Photo Grid
Hide
Previous
Next
Show more
Floor Plans
Slideshow
Photo Grid
Hide
Previous
Next
3D Tour