20421 Netherland St, Wedgefield, FL 32833
Toggle Navigation
Images
Floor Plans
3D Tour
Map
20421 Netherland St
Wedgefield, FL 32833
Scroll to Content
Images
Slideshow
Photo Grid
Hide
Previous
Next
Show more
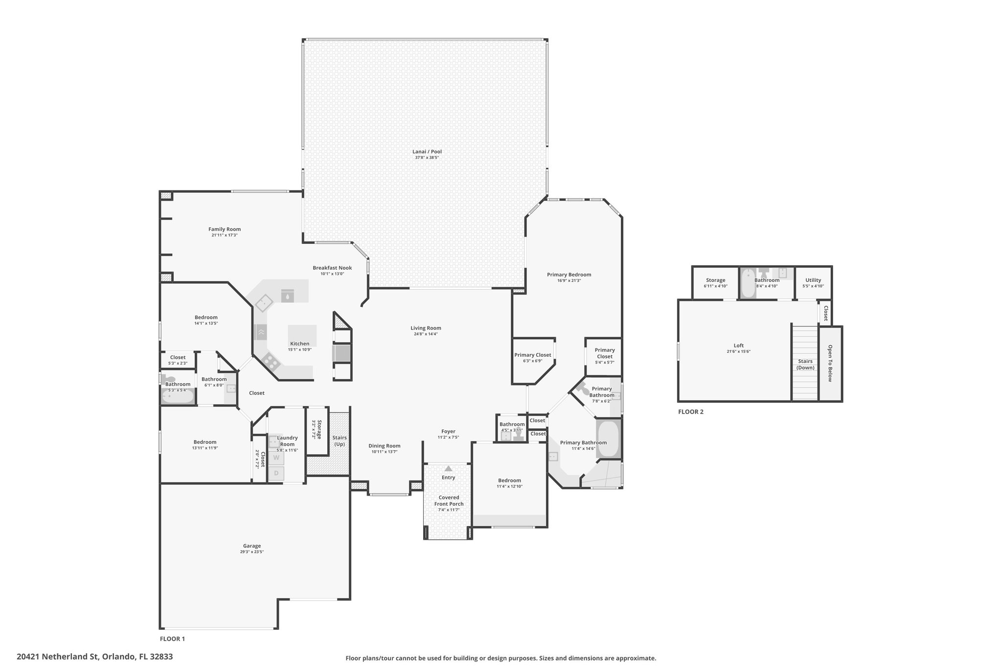
Floor Plans
Slideshow
Photo Grid
Hide
Previous
Next
3D Tour