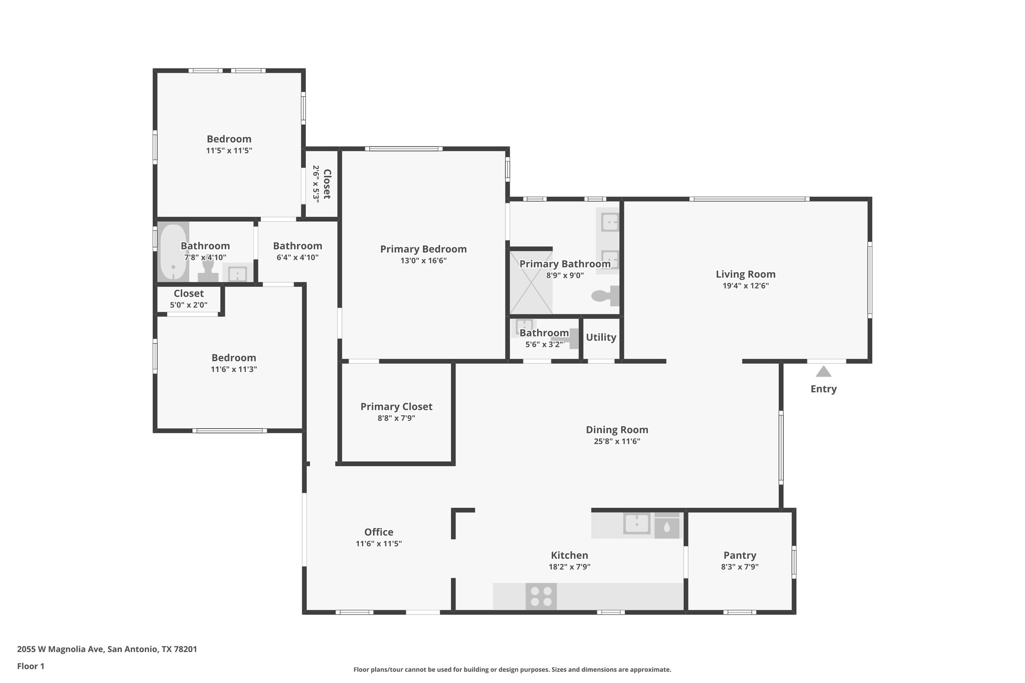
2055 W Magnolia Ave, San Antonio, TX 78201
Toggle Navigation
Floor Plans
3D Tour
Map
2055 W Magnolia Ave
San Antonio, TX 78201
Scroll to Content
Floor Plans
Slideshow
Photo Grid
Hide
Previous
Next
3D Tour