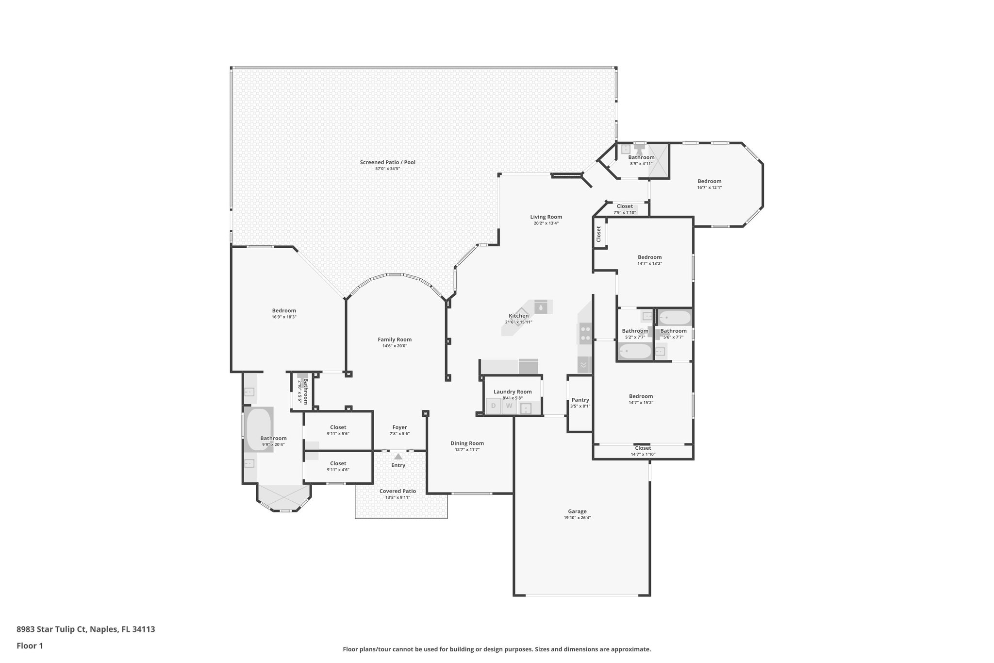
8983 Star Tulip Ct, Naples, FL 34113
Toggle Navigation
Images
Videos
Floor Plans
3D Tour
Map
8983 Star Tulip Ct
Naples, FL 34113
Scroll to Content
Images
Slideshow
Photo Grid
Hide
Previous
Next
Show more
Videos
Floor Plans
Slideshow
Photo Grid
Hide
Previous
Next
3D Tour