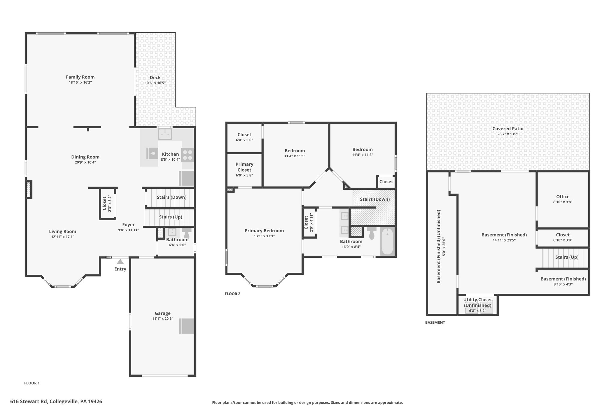
616 Stewart Rd, Collegeville, PA 19426
Toggle Navigation
Images
Videos
Floor Plans
3D Tour
Map
616 Stewart Rd
Collegeville, PA 19426
Scroll to Content
Images
Slideshow
Photo Grid
Hide
Previous
Next
Show more
Videos
Floor Plans
Slideshow
Photo Grid
Hide
Previous
Next
3D Tour